Keizersgracht 320 1016 EZ Amsterdam

Omschrijving

Keizersgracht 320

Prachtig klassiek grachtenpand met achter de 18de eeuwse facade een modern herenhuis met comfort en luxe met mooie originele details die zorgen voor de warme sfeer.
Het pand heeft een bruto vloeroppervlak van 393 m2 en een netto woonoppervlak van 323 m2 (NEN2580), verdeeld over 5 etages. Er zijn tal van mogelijkheden voor het gebruik, met 10 kamers, drie badkamers en de heerlijke stadstuin is het zeer geschikt als familiehuis.
Momenteel wonen de eigenaren in het dubbele benedenhuis en verhuren de eerste verdieping als B&B en 2e verdieping met vliering wordt verhuurd als luxe woonruimte.
Ook een praktijk of een kantoor aan huis behoort tot de mogelijkheden.
Nummer 320 ligt midden in de Jordaan om de hoek van de Berenstraat, één van de Negen Straatjes en 5 minuten lopen van de Elandsgracht alwaar de grootste supermarkt van Nederland, buiten alle gezellige eettentjes en winkels die de buurt rijk is.

Indeling:
Het bordes aan de voorzijde is het entree naar het huis, maar ook een heerlijke zonnige plek in de ochtend, waar menig kopje koffie gedronken is en in de zomer rond borreluur altijd wel iets te doen is. De sloep ligt voor de deur in het zonnetje te dobberen.
Bel-etage:
Via de monumentale hal kom je op de bel-etage, van oorsprong de mooiste en hoogste verdieping, daar bevindt zich de kamer en-suite bestaande uit een intieme woonkamer met open haard en prachtig zicht op de gracht en de royale eetkamer met aansluitend de veranda met trap naar de tuin, via de hal kom je in de studeerkamer met toiletruimte.
Souterrain:
Hier de gezellige keuken met directe toegang naar de stadstuin, toilet, wasruimte, royale badkamer met dubbele rain showers, ligbad, urinoir en wastafelmeubel en de zeer gezellige master bedroom met veel kasten en bergruimte.
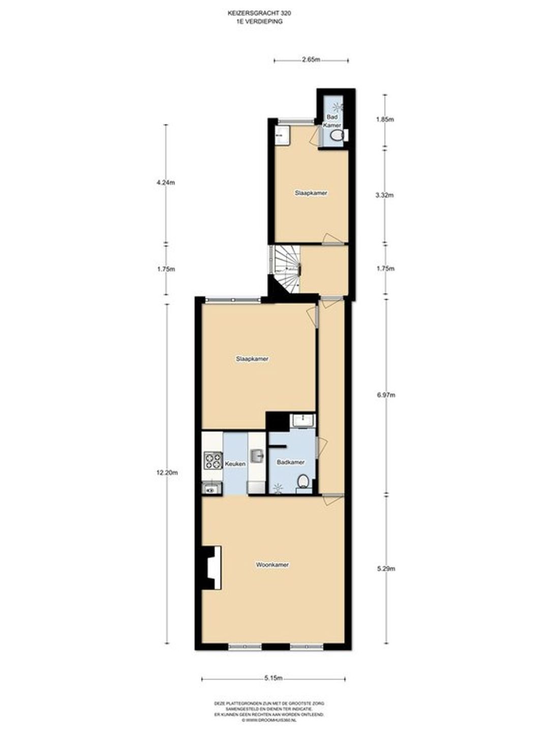
Eerste verdieping:
Dit is momenteel een zelfstandige verdieping met twee slaapkamers, twee badkamers, volledig geoutilleerde pantry en een prachtige living met moderne gashaard en een schitterende blik op de gracht.
Tweede verdieping:
In het achterhuis de badkamer en toilet, klein trappetje op en dan een prachtige grote ruimte met een woonkeuken en living onder de balken, het geeft je een zeer authentiek maar open gevoel, de oplossing voor de slaapkamers is uniek, allebei in de punt van de kap de bereiken met ieder zijn eigen trap, de een in het voorhuis en de ander in het achterhuis.
Tuin:
De tuin is een echte stadstuin, aangelegd met mooie bestrating en omheind met groen, hij is te bereiken via de veranda vanuit de eetkamer of de keuken, er is een kleine schuur en bergkast. Een mooie stille oase in hartje Amsterdam.

Omgeving:
De mooie brede Keizersgracht is een feest om te wonen, je kan overal lopend of fietsend naar toe, in elk van de negen straatjes is wel een favoriete winkel of coffee bar, maar ook de mooie grote hotels met de cocktailbars en restaurants zijn prettige ontmoetingsplekken. Met de boot kan je door de hele grachtengordel varen en zo het IJ op, naar Ouderkerk aan de Amstel of richting de Vecht. Het Centraal Station is met de tram en de fiets in 5 minuten te bereiken. Diverse theaters, bioscopen en musea het maakt allemaal onderdeel uit van het Unesco erfgoed, de buurt voelt als een dorp maar het is een mondiaal spektakel, waar eigenlijk iedereen deel van wil uitmaken.

Bijzonderheden
Rijksmonument uit 1788
Eigen grond
Bruto vloeroppervlak 393 m2
NEN 2580 woonoppervlak 323 m2
10 kamers, 4 badkamers
Stadstuin, veranda en bordes
Goed onderhouden

Een geweldig goed onderhouden grachtenpand met vele gebruiks-mogelijkheden op een spectaculaire plek in het hart van de grachtengordel in het centrum van Amsterdam.

Lees de volledige omschrijving

Kenmerken

Aangeboden sinds
6+ maanden
Status
Verkocht
Aanvaarding
In overleg
Soort woonhuis
Grachtenpand, tussenwoning
Soort bouw
Bestaande bouw
Bouwjaar
1788
Ligging
Aan vaarwater, aan water, in centrum

Oppervlakten en inhoud

Wonen
323 m²
Gebouwgebonden Buitenruimte
5 m²
Externe bergruimte
3 m²
Perceel
150 m²
Inhoud
1.213 m³

Indeling

Aantal kamers
10 kamers (6 slaapkamers)
Aantal badkamers
4 badkamers
Badkamervoorzieningen
Douche, dubbele wastafel, inloopdouche, ligbad, toilet, urinoir, wastafel, wastafelmeubel
Aantal woonlagen
5

Energie

Warm water
Cv ketel

Kadastrale gegevens

Perceelnaam
Amsterdam E 7780
Oppervlakte
150 m²
Eigendomssituatie
Volle eigendom
Perceel
ASD03-E-7780

Buitenruimte

Tuin
Achtertuin
Achtertuin
57 m²
Ligging tuin
West

Parkeergelegenheid

Soort parkeergelegenheid
Betaald parkeren, openbaar parkeren, parkeervergunningen
Bekijk alle kenmerken