Johannes Verhulststraat 86 HS 1071 NK Amsterdam

Omschrijving

Johannes Verhulststraat 86 HS Amsterdam

For English tekst see below.

Prachtig, breed, licht en sfeervol 3-laags familiehuis met 4 slaapkamers, twee badkamers en heerlijke tuin.

Het huis kenmerkt zich door hoog afwerkingsniveau met behoud van klassieke details en de royale afmetingen; het pand is bijna 7 meter breed en plafondhoogte 3,20m. Totaal 246 m2. Het pand is zeer goed onderhouden, het benedenhuis is in 2014 compleet gerenoveerd.

Indeling:

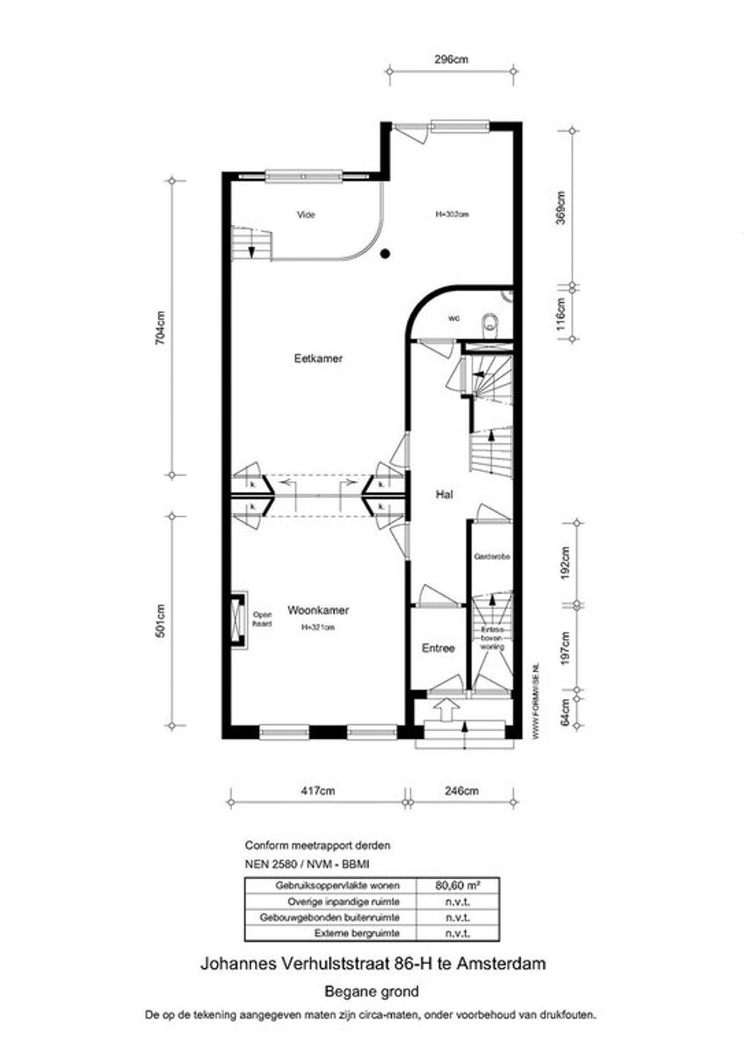
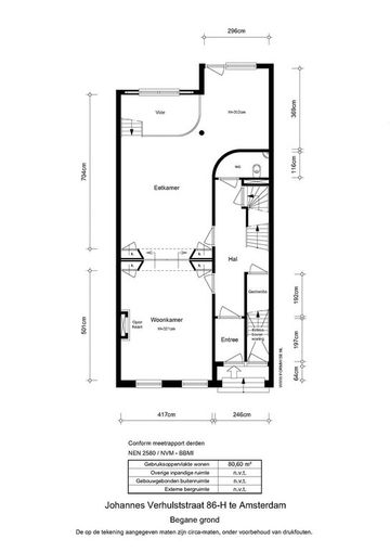
Bel-etage:
Eigen entree, royale hal met trap naar de eerste etage en souterrain, apart toilet, garderobe en toegang naar de kamer en suite. Aan de straatzijde het zitgedeelte met fraaie schouw met open haard aan de tuinzijde perfecte plek voor een eettafel en een aparte lounge hoek met tv /entertainment.

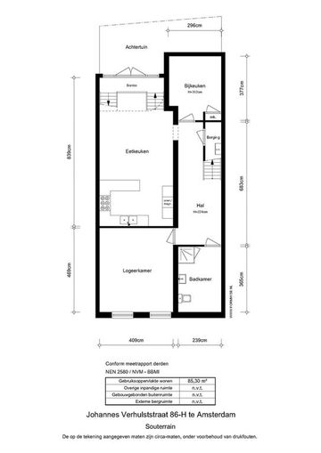
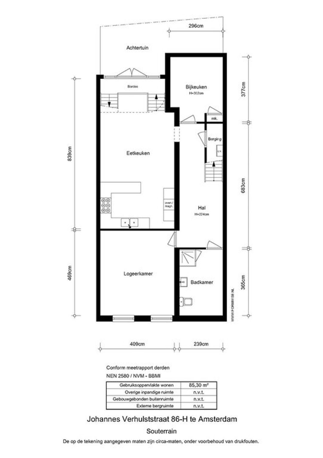
Souterrain:
Aan de achterkant van de kamer en suite is een vide met trap naar de tuin en naar het souterrain. Aan de tuinzijde van het souterrain is de woonkeuken met direct toegang tot de tuin, de keuken is ruim opgezet met een gezellige eethoek. Naast de keuken is een bijkeuken met veel bergruimte en aansluitingen voor was- en droogmachines. Via de hal is een grote slaapkamer te bereiken en een badkamer met toilet, wastafel en douche, ideaal voor logees. Tevens de trap naar de bel-etage.

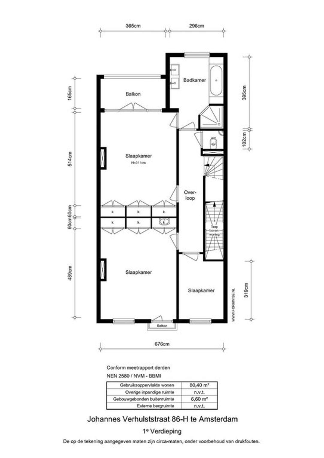
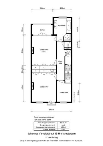
Eerste etage:
Twee grote slaapkamers met inbouwkasten en een derde slaapkamer. De master slaapkamer aan de tuinzijde heeft een gashaard, openslaande deuren naar de loggia en direct toegang tot de badkamer. De slaapkamer aan de voorkant heeft toegang tot een balkon. De badkamer is ook van af de overloop te bereiken en heeft een ligbad, dubbele wastafel aparte douche en veel daglicht.

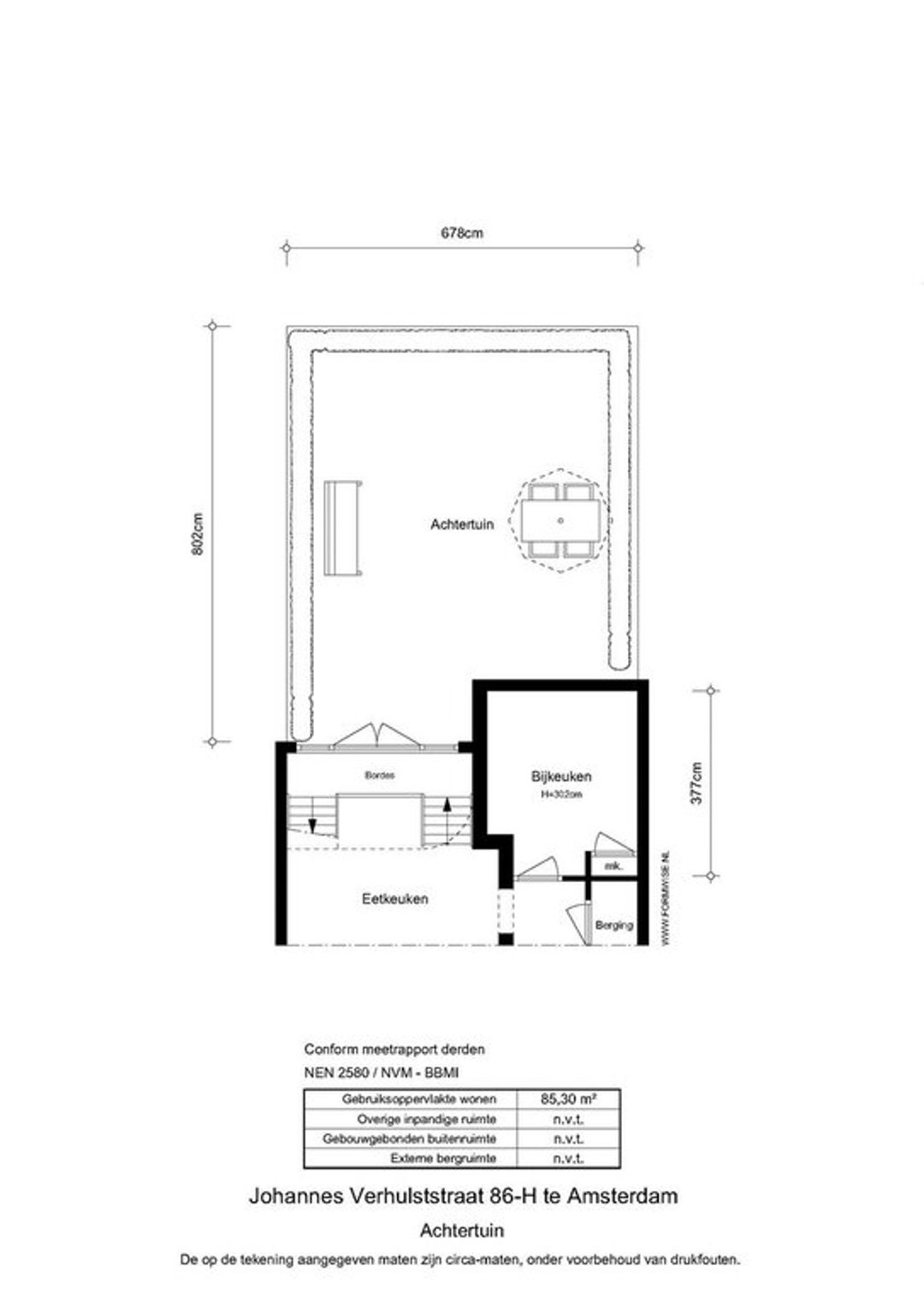
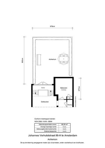
Tuin:
De tuin is een prachtig ontworpen. Het heeft een overdekt gedeelte met heaters zodat je het gehele jaar van de tuin kan genieten. De tuin is circa 50 m2, voorzien van plavuizen en bordes met mooie planten.

De keuken is van het Italiaanse merk Poliform en is in 2014 geplaatst, voorzien van hardstenen blad en luxe apparatuur waaronder oven, stoom oven, grote ijskast, gas fornuis allemaal van Gaggenau en een Quooker. In de bijkeuken is ruimte voor voorraad en extra koel- en vrieskasten en een wijn kast.

Locatie:
Het pand is gelegen aan een brede statige straat en om de hoek van de Cornelis Schuytstraat. Het Vondelpark, Concertgebouw, vele musea en goede restaurants op loopafstand. Tevens is het goed bereikbaar met openbaar vervoer of met de auto. Parkeervergunning per direct te verkrijgen.

Bijzonderheden:
– eigen grond
– woonoppervlakte 246 m2, tuin 50 m2
– 4 slaapkamers, 2 badkamers
– in 2014 compleet gerenoveerd, inclusief de tuin
– kleine VVE – twee leden, service kosten € 100 per maand
– parkeervergunning korte wachtlijst. Extra parkeerplaatsen te huur om de hoek.

Johannes Verhulststraat 86 HS Amsterdam

Beautiful, wide, light and attractive family house with 4 bedrooms, two bathrooms and a lovely garden.

The house is characterized by a high level of finish while maintaining classic details and grand dimensions; the building is almost 7 meters wide and ceiling height 3.20 m. Total 246 m2. The property is very well maintained, the lower house was completely renovated in 2014.

Layout:
Private entrance on the elevated ground floor, spacious hall with stairs to the first floor and basement, separate toilet, wardrobe and access spacious living room. On the street side a cozy sitting area with beautiful fireplace, on the garden side perfect place for a dining table and a separate lounge area with TV / entertainment.

Basement:
At the back of the living room is an opening with stairs to the garden and to the basement. On the garden side of the basement is the kitchen with direct access to the garden, the kitchen is spacious with a cozy dining area. Next to the kitchen is a utility room with ample storage space and connections for washing and drying machines. Through the hall you can reach a large bedroom and a bathroom with toilet, sink and shower, ideal for guests. Also the stairs to the first floor.

First floor:
Two large bedrooms with fitted wardrobes and a third bedroom. The master bedroom on the garden side has a gas fireplace, doors to the loggia and direct access to the bathroom. The bedroom at the front has access to a balcony. The bathroom is also accessible from the landing and has a bath, double sink, separate shower and lots of daylight.

Garden:
The garden is beautifully designed. It has a covered area with heaters so that you can enjoy the garden throughout the year. The garden is approximately 50 m2, equipped with tiles and beautiful plants.

The kitchen is from the Italian brand Poliform and was installed in 2014, with hard stone countertop and all equipment including oven, steam oven, large refrigerator, gas stove all from Gaggenau and a Quooker. In the utility room there is room for stock and extra refrigerators and freezers and a wine cabinet.

Location:
The property is located on a wide street and around the corner from the Cornelis Schuytstraat. The Vondelpark, Concertgebouw, many museums and good restaurants within walking distance. It is also easily accessible by public transport or by car. Parking permit available immediately.

Specifications:
– free hold property
– 246 m2 living area, garden 50 m2
– 4 bedrooms, 2 bathrooms
– completely renovated in 2014, including the garden
– small VVE – two members, service costs € 100 per month
– parkingpermit short waiting list. extra parkingplaces for rent around the corner

Lees de volledige omschrijving

Kenmerken

Aangeboden sinds
6+ maanden
Status
Verkocht
Aanvaarding
In overleg
Soort woonhuis
Appartement, benedenwoning
Soort bouw
Bestaande bouw
Bouwjaar
1902

Oppervlakten en inhoud

Wonen
246 m²
Gebouwgebonden Buitenruimte
7 m²
Inhoud
950 m³

Indeling

Aantal kamers
7 kamers (4 slaapkamers)
Aantal badkamers
2 badkamers
Badkamervoorzieningen
Douche, dubbele wastafel, ligbad, toilet, wastafelmeubel
Aantal woonlagen
3

Kadastrale gegevens

Perceelnaam
Amsterdam u 10926
Eigendomssituatie
Volle eigendom
Perceel
ASD17-u-10926

Buitenruimte

Tuin
Achtertuin
Achtertuin
54 m²
Bekijk alle kenmerken